Properties

Save
Ask
Tour
Hide
Share
$3,200,000
New Listing

Wembly Road
New Windsor, NY 12553

For Sale|Land|Active
County:
Orange
Listing courtesy of eRealty Advisors, Inc joelweiser@mail.com
Call Now: (631) 727-3713
Is this the listing for you? We can help make it yours.
(631) 727-3713
Wembly RoadWembly RoadWembly RoadWembly Road
Save
Ask
Tour
Hide
Share

Mortgage Calculator

Monthly Payment (Est.)

$14,600
Calculator powered by Showcase IDX, a Constellation1 Company. Copyright ©2026 Information is deemed reliable but not guaranteed.

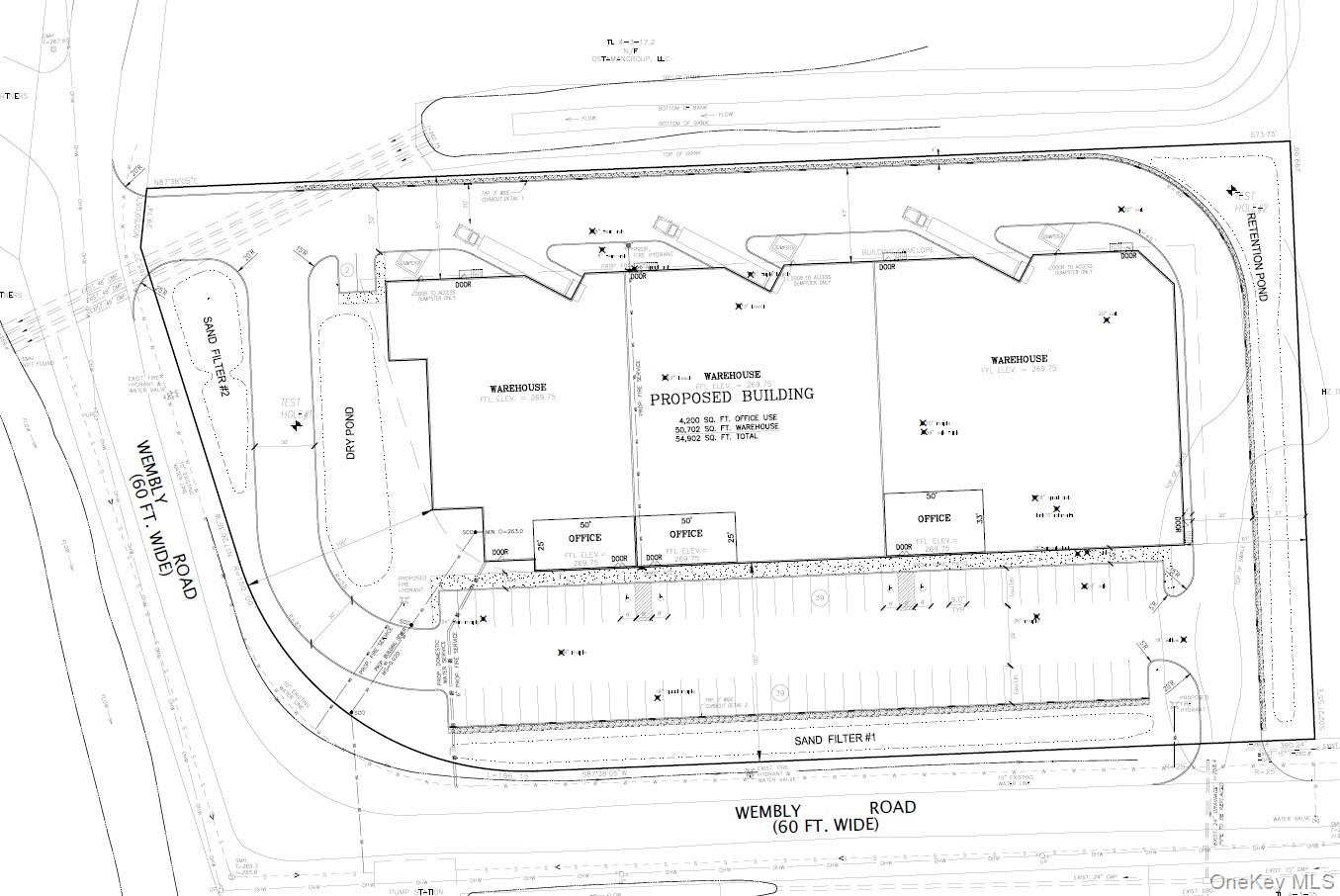
Introducing a prime commercial development opportunity. - A flat 3.7 acres property, approved to build a free-standing 54,902 square feet manufacturing/warehouse facility. - The site plan includes a 35' clear ceiling height, well-configured office space, bathrooms and a secured outdoor paved lot for parking or storage. - Property is supported by like-kind infrastructure and can easily be connected to electric power, natural gas, public sewer & water. - Ideal for many type of uses including manufacturing, packaging, distribution, storage and more.  - Prime industrial area surrounded by a well-skilled labor force. - Strategically located within short distance of major highways: I-86/Route 17, NYS Thruway (I-87), I-84, minutes from Stewart International Airport. Ownership will also consider delivering a fully built-to-suit building. Reach out for details.

Save
Ask
Tour
Hide
Share
Listing Snapshot
Price 
$3,200,000
Days On Site 
0 Days
Bedrooms 
N/A
Inside Area (SqFt) 
N/A
Total Baths 
N/A
Full Baths 
N/A
Partial Baths 
N/A
Lot Size 
3.7 Acres
Year Built 
N/A
MLS® Number 
952384
Status 
Active
Property Tax 
$9,197.59
HOA/Condo/Coop Fees 
N/A
Sq Ft Source 
N/A
Friends & Family
Recent Activity
9 hours agoListing first seen on site
9 hours agoListing updated with changes from the MLS®
General Features
Acres 
3.7
Additional Property Use 
Vacant
Sewer 
Public Sewer
Save
Ask
Tour
Hide
Share
Community Features
School District 
Newburgh
Schools
School District
Newburgh
Elementary School
Newburgh
Middle School
Newburgh
High School
Newburgh Free Academy
Listing courtesy of eRealty Advisors, Inc joelweiser@mail.com


Based on information submitted to the MLS GRID as of 2026-01-16 01:57 AM EST. All data is obtained from various sources and may not have been verified by broker or MLS GRID. Supplied Open House Information is subject to change without notice. All information should be independently reviewed and verified for accuracy. Properties may or may not be listed by the office/agent presenting the information.

Neighborhood & Commute
Source: Walkscore
Disclosure: Community information and market data powered by Constellation Data Labs. Information is deemed reliable but not guaranteed.
Save
Ask
Tour
Hide
Share